-
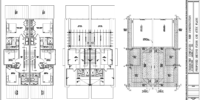
Duplex
-
2500-2750 sq ft per unit
-
4+ bed, 4+ bath
-
Craftsman style home with traditional architectural features
-
Roof top deck with wet bar & outdoor living space
-
Main level screened-in porch
-
Driveway with optional EV charging station
-
Basement with wet bar and egress
-
Large fenced in private backyard space
-
Walking distance to the Avenue in Del Ray and Braddock Road Metro
103 E Monroe Ave
103 E Monroe Ave
Address: 103 E Monroe Ave, Alexandria, VA
Neighborhood: Monroe Ave, Alexandria
Details
Bedroom 4+
Full Baths 4+
Half Baths
Garage Spaces
Floors
Living Sq.Ft.
Status For Sale
Realtor
Michelle Doherty
Michelle Doherty
michelle@michelledmvrealtor.com






